Ház eladó

Göd, Göd út
129.900.000 Ft
€ 335.320
6 szoba 6 szoba
160 nm 160 nm
2 fürdő 2 fürdő

Ház eladó

Göd, Göd út

Leírás

Igazi ritkaság Göd központjában - két ház egy telken, kiváló lokációval és infrastruktúrával!

Eladásra kínálunk egy 1385 nm-es, gondozott telken elhelyezkedő ingatlant, amely két különálló lakóházat foglal magában. Ideális választás két generáció együttélésére, de akár külön is remek lehetőség.

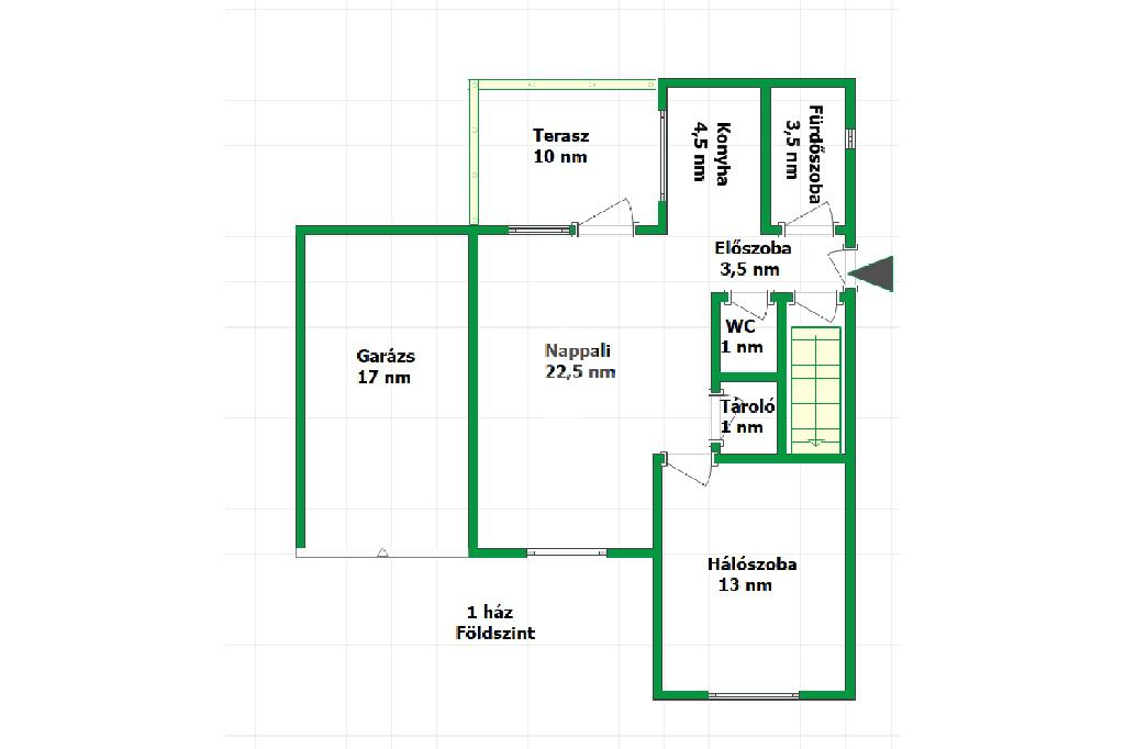
Az első ház 90 nm, 2007-ben épült, 38-as Leier téglából, belső kétszintes kialakítással. A földszinten nappali, konyha, hálószoba, kamra és egy hangulatos terasz található. A tetőtér jelenleg nincs teljesen befejezve, azonban minden gépészeti előkészítés megvan (fütés, víz, villany), a nyílászárók be vannak építve - így könnyedén kialakítható benne további két hálószoba és egy fürdőszoba.

A második ház 70 nm,1980-ban lett bővítve, és egy klasszikus elrendezésű, 3 szobás, konyhával, fürdőszobával, előszobával és terasszal.

Mindkét ház külsőleg hőszigetelt + Baumit vakolatot kapott, Tondach kerámia cserépfedéssel rendelkezik, valamint fa tipusu thermo üveges nyílászárókkal. A fűtés és meleg víz ellátása külön gázcirkó készüléken keresztül történik, külön gázórával.

Az udvaron található egy 17 nm-es garázs szerelő aknával, valamint egy 20 nm-es fedett kocsibeálló is. A kert gondosan ápolt, örökzöldekkel és termő gyümölcsfákkal, ami igazán barátságossá teszi a környezetet.

Az elhelyezkedés kiváló: Göd központjában található, pár perc sétára elérhető a buszmegálló, vasútállomás, bevásárlási lehetőségek, valamint a Duna-part is.

További kérdéseivel, illetve megtekintési szándékával kérem keresse irodánkat.

A hirdetésben szereplő adatok tájékoztató ingatlan hitelre is megvásárolható. Bankfüggetlen tanácsadóink, az ország összes pénzintézete közül gyorsan és gördülékenyen találja meg az Önnek legmegfelelőbb konstrukciót, egyedi kedvezményekkel. A hitel közvetítés díjmentes.

Összes mutatása

Tulajdonságok

Ref.:
56428
Állapot:
Lift:
Nincs
Építőanyag:
Tégla
Építés éve:
2000
Tájolás:
Déli Keleti
Összes mutatása

Energetikai tanúsítvány

Ennél az ingatlannál az energetikai tanúsítvány folyamatban van
Építés éve:
2000

Vegye fel velünk a kapcsolatot

* Ez a mező kötelező
Franchisee
Vede Casa Kft.
2131 Dunakeszi Járás, Pesti út, 57.
2131 Dunakeszi Járás, Pesti út, 57. Göd
Hétfő-Péntek: 09:00-19:00,Szombat: 09:00-13:00

Munkatársaink


  • Lidia Oltyán
    Irodavezető

  • Attila Hodola
    Irodatulajdonos

  • Nagy Tifani
    Asszisztens

  • Zsombor Pap
    Képviselő

  • Magyar Péter
    Képviselő
Franchisee
Vede Casa Kft.
2131 Dunakeszi Járás, Pesti út, 57.
Tecnocasa Group Logo

Minden ügynökségnek saját tulajdonosa van és önállóan működik.

árfolyam 29/12/2025
EUR 387.39 HUF

cégünk

Elérhetőségeink

2025 Gruppo T.F.M. Szolgáltató Zrt. - P. IVA 27421275-2-42 - 1068 Budapest, Király utca 102.. Minden ügynökségnek saját tulajdonosa van és önállóan működik.

Adatvédelmi irányelvek | Cookies tájékoztató