Ház eladó

Göd, Göd út
139.900.000 Ft
€ 361.134
4 szoba 4 szoba
122 nm 122 nm
2 fürdő 2 fürdő

Ház eladó

Göd, Göd út

Leírás

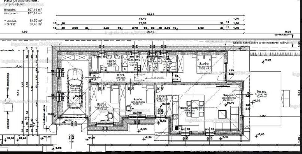
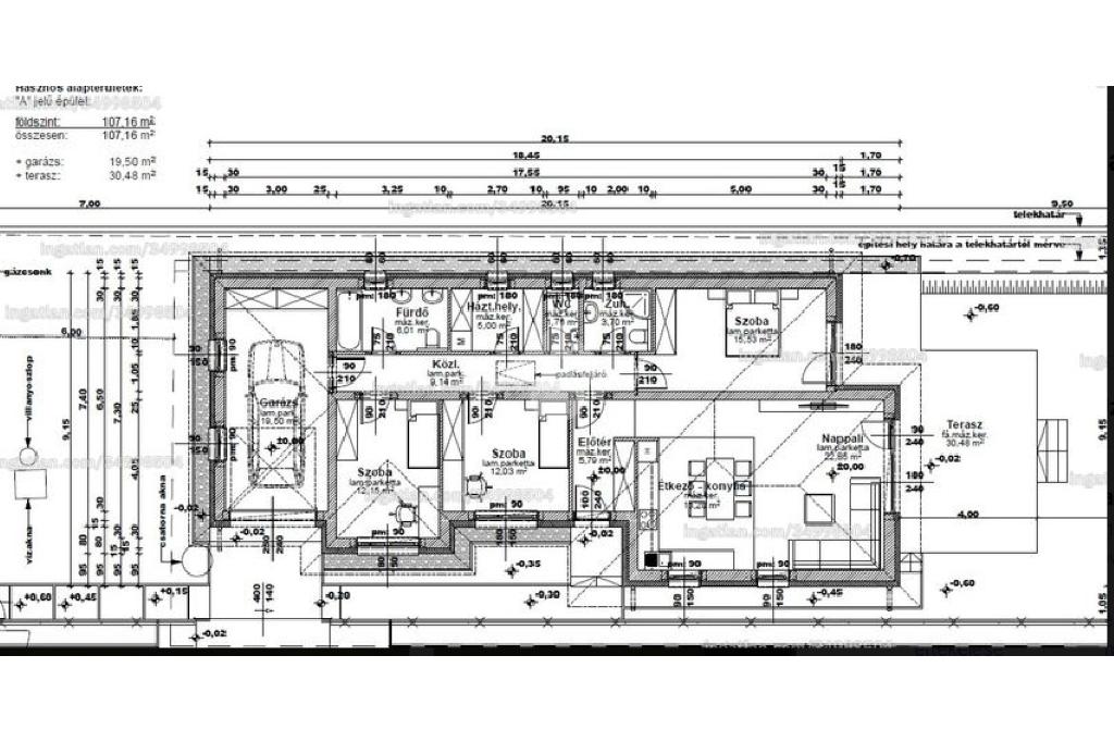
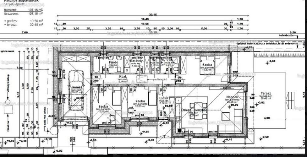
Göd központi részén eladó egy 122 nm-es, újépítésű családi ház, 450 nm-es saját kerttel.

Az ingatlan 30-as téglából épül, 15 cm-es EPS szigeteléssel és háromrétegű műanyag nyílászárókkal, amelyek stabil és jól szigetelt otthont biztosítanak. A fűtést hőszivattyú látja el, a teljes ház padlófűtéses.

Az elrendezés átgondolt: amerikai konyhás nappali, négy szoba, háztartási helyiség, egy zuhanyzós és egy kádas fürdőszoba szolgálja a kényelmet.

A cserépfedés tartós megoldást ad, a tervezett garázs helyett pedig igény esetén egy plusz szoba is kialakítható.

Az ingatlan jó elhelyezkedése és modern műszaki tartalma hosszú távon is kényelmes, jól használható otthont biztosít.

várható átadás: 2026. május

Jelen esetben foglalózás után, hideg meleg burkolatok, beltéri nyílászárók, szaniterek választhatóak melyek a meghirdetett ár részét képezik a belső műszaki tartalom szerint

Megtekintés érdekében vagy felmerülő kérdés esetén keresse irodánkat.

A hirdetésben szereplő adatok tájékoztató jellegűek.


Az ingatlan hitelre is megvásárolható. Bankfüggetlen tanácsadóink, az ország összes pénzintézete közül gyorsan és gördülékenyen találja meg az Önnek legmegfelelőbb konstrukciót, egyedi kedvezményekkel. A hitel és az ingatlan közvetítés vevőink részére díjmentes.

Összes mutatása

Tulajdonságok

Ref.:
58706
Állapot:
Új
Lift:
Nincs
Építőanyag:
Tégla
Építés éve:
2026
Emeletek száma:
1
Összes mutatása

Energetikai tanúsítvány

Ennél az ingatlannál az energetikai tanúsítvány folyamatban van
Építés éve:
2026

Vegye fel velünk a kapcsolatot

* Ez a mező kötelező
Franchisee
Vede Casa Kft.
2131 Dunakeszi Járás, Pesti út, 57.
2131 Dunakeszi Járás, Pesti út, 57. Göd
Hétfő-Péntek: 09:00-19:00,Szombat: 09:00-13:00

Munkatársaink


  • Lidia Oltyán
    Irodavezető

  • Attila Hodola
    Irodatulajdonos

  • Nagy Tifani
    Asszisztens

  • Zsombor Pap
    Képviselő

  • Magyar Péter
    Képviselő
Franchisee
Vede Casa Kft.
2131 Dunakeszi Járás, Pesti út, 57.
Tecnocasa Group Logo

Minden ügynökségnek saját tulajdonosa van és önállóan működik.

árfolyam 29/12/2025
EUR 387.39 HUF

cégünk

Elérhetőségeink

2025 Gruppo T.F.M. Szolgáltató Zrt. - P. IVA 27421275-2-42 - 1068 Budapest, Király utca 102.. Minden ügynökségnek saját tulajdonosa van és önállóan működik.

Adatvédelmi irányelvek | Cookies tájékoztató