Ház eladó

Göd, Nevelek utca - Felsőgöd
144.900.000 Ft
€ 374.041
5 szoba 5 szoba
120 nm 120 nm
2 fürdő 2 fürdő

Ház eladó

Göd, Nevelek utca - Felsőgöd

Leírás

ÚJ ÉPÍTÉSŰ ÖNÁLLÓ, EGY SZINTES CSALÁDI HÁZ ELADÓ!

CSALÁDI OTTHONTEREMTÉSI KEDVEZMÉNY (CSOK+), 3% OTTHON START, ILLETÉK KEDVEZMÉNYEK igénybe vehetők!

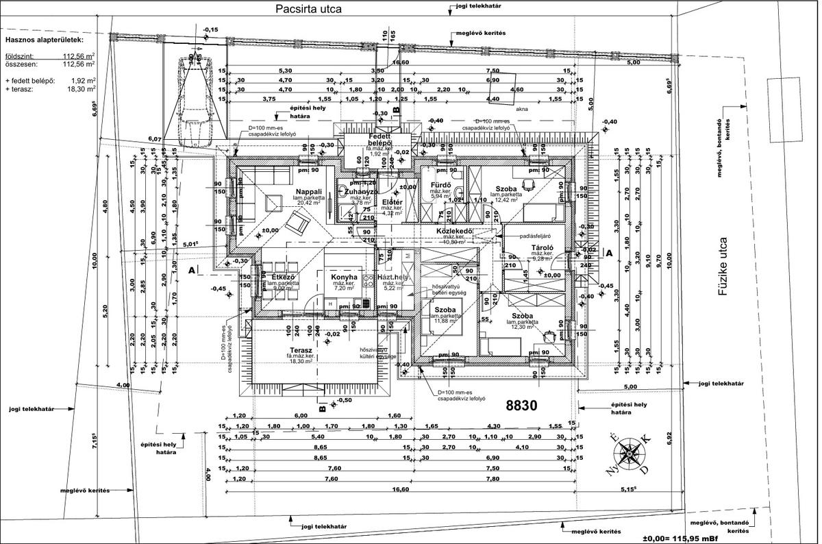
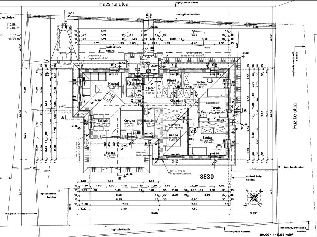
Felsőgöd folyamatosan fejlődő Nevelek részén, csendes zöld fás környezetben, 672 nm telekkel, amerikai konyhás nappalival, 4 db szobával, 20 nm-es terasszal, kocsibeállóval.

Magas műszaki tartalommal, 30-as Porotherm téglából épül + 15 cm külső szigetelés, 3 rétegű thermo üveges nyílászárókkal, beton födémmel, ami felett 20 cm-es szigetelés van, bramac beton cserép fedéssel.

A ház fűtéséről és a melegvíz ellátásról 10 kW-os hőszivattyús rendszer fog gondoskodni, padlófűtéses hőleadással és magasoldalfali fancoilok előcsövezése hűtéshez-fűtéshez.

A hideg, meleg burkolatok, belső nyílászárók és a szaniterek a műszaki leírás szerint választhatóak, a konyhabútor nem tartozéka az ingatlannak.

Az ingatlan kulcsra kész tervezett átadási ideje 2026 június vége.

További kérdésével, műszaki tartalomért, és megtekintési időpontért kérem keresse irodánkat.

A hirdetésben szereplő adatok tájékoztató jellegűek.

Az ingatlan hitelre is megvásárolható. Bankfüggetlen tanácsadóink, az ország összes pénzintézete közül gyorsan és gördülékenyen találja eg az Önnek legmegfelelőbb konstrukciót, egyedi kedvezményekkel. A hitel közvetítés díjmentes.

Összes mutatása

Tulajdonságok

Ref.:
58984
Állapot:
Új
Emelet:
Földszint
Lift:
Nincs
Építőanyag:
Tégla
Építés éve:
2025
Összes mutatása

Energetikai tanúsítvány

Ennél az ingatlannál az energetikai tanúsítvány folyamatban van
Építés éve:
2025

Vegye fel velünk a kapcsolatot

* Ez a mező kötelező
Franchisee
Vede Casa Kft.
2131 Dunakeszi Járás, Pesti út, 57.
2131 Dunakeszi Járás, Pesti út, 57. Göd
Hétfő-Péntek: 09:00-19:00,Szombat: 09:00-13:00

Munkatársaink


  • Lidia Oltyán
    Irodavezető

  • Attila Hodola
    Irodatulajdonos

  • Nagy Tifani
    Asszisztens

  • Zsombor Pap
    Képviselő

  • Magyar Péter
    Képviselő
Franchisee
Vede Casa Kft.
2131 Dunakeszi Járás, Pesti út, 57.
Tecnocasa Group Logo

Minden ügynökségnek saját tulajdonosa van és önállóan működik.

árfolyam 29/12/2025
EUR 387.39 HUF

cégünk

Elérhetőségeink

2025 Gruppo T.F.M. Szolgáltató Zrt. - P. IVA 27421275-2-42 - 1068 Budapest, Király utca 102.. Minden ügynökségnek saját tulajdonosa van és önállóan működik.

Adatvédelmi irányelvek | Cookies tájékoztató