Ház eladó

Göd, Göd utca
184.900.000 Ft
€ 477.296
5 szoba 5 szoba
181 nm 181 nm
2 fürdő 2 fürdő

Ház eladó

Göd, Göd utca

Leírás

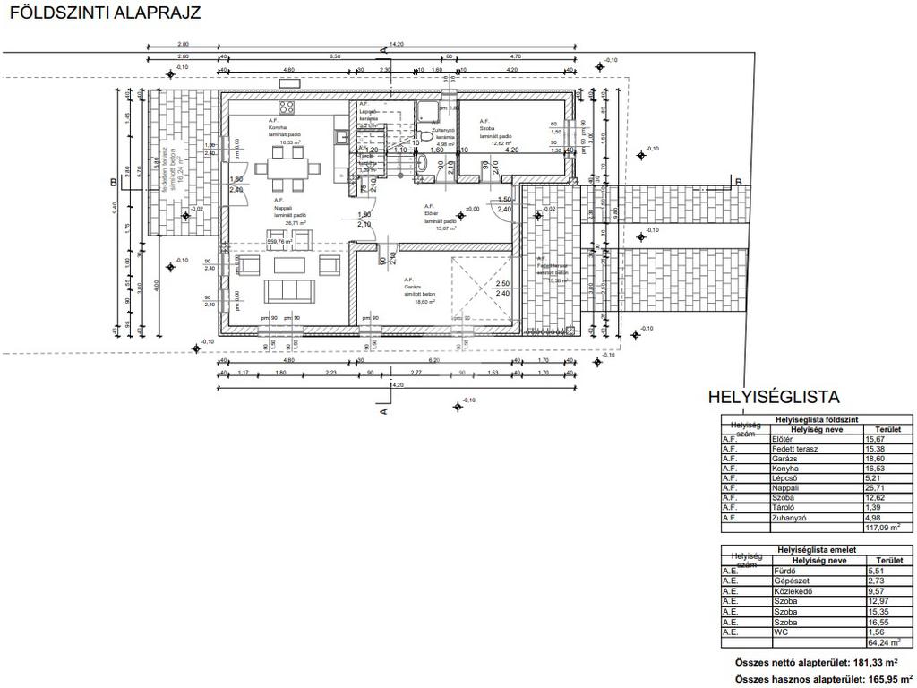
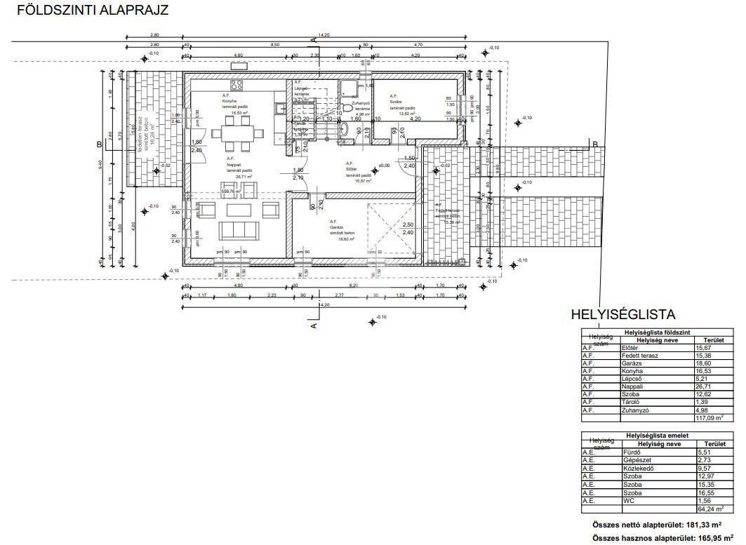
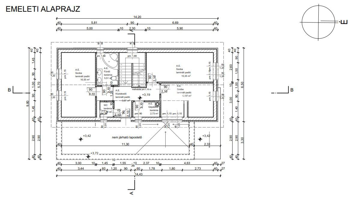
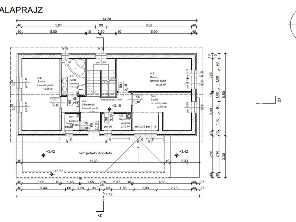
Göd központjában eladó újépítésű 182 m²-es, önálló családi ház, amelyhez 560 m²-es telek tartozik.
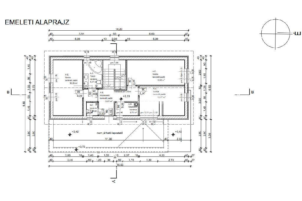
Az ingatlan tégla falazattal épül, cserépfedéssel, valamint 10 cm-es dryvit szigeteléssel. Műanyag, thermo üvegezésű nyílászárók gondoskodnak a kiváló hő- és hangszigetelésről. Elosztása: földszinten található garázs, amerikai konyhás nappali, hálószoba, fürdőszoba, míg az emeleten 3 db hálószoba, fürdő WC külön és egy gépészeti helység. A fűtésről gázcirkó gondoskodik, padlófűtéses hőleadással.
Az ingatlanba 2 darab hűtő-fűtő klíma is beépítésre kerül.

Igény esetén a ház hőszivattyús rendszerrel is kérhető. Ebben az esetben az ingatlan ára 188 000 000 Ft.

Várható átadás: 2026. Június

Jelen esetben foglalózás után, hideg meleg burkolatok, beltéri nyílászárók, szaniterek választhatóak melyek a meghirdetett ár részét képezik a belső műszaki tartalom szerint.

További kérdéseivel, illetve megtekintési szándékával kérem keresse irodánkat.

A hirdetésben szereplő adatok tájékoztató jellegűek.

Az ingatlan hitelre is megvásárolható. Bankfüggetlen tanácsadóink, az ország összes pénzintézete közül gyorsan és gördülékenyen találja meg az Önnek legmegfelelőbb konstrukciót, egyedi kedvezményekkel. A hitel közvetítés díjmentes

Összes mutatása

Tulajdonságok

Ref.:
59341
Állapot:
Új
Lift:
Nincs
Építőanyag:
Tégla
Építés éve:
2026
Emeletek száma:
2
Összes mutatása

Energetikai tanúsítvány

Ennél az ingatlannál az energetikai tanúsítvány folyamatban van
Építés éve:
2026

Vegye fel velünk a kapcsolatot

* Ez a mező kötelező
Franchisee
Vede Casa Kft.
2131 Dunakeszi Járás, Pesti út, 57.
2131 Dunakeszi Járás, Pesti út, 57. Göd
Hétfő-Péntek: 09:00-19:00,Szombat: 09:00-13:00

Munkatársaink


  • Lidia Oltyán
    Irodavezető

  • Attila Hodola
    Irodatulajdonos

  • Nagy Tifani
    Asszisztens

  • Zsombor Pap
    Képviselő

  • Magyar Péter
    Képviselő
Franchisee
Vede Casa Kft.
2131 Dunakeszi Járás, Pesti út, 57.
Tecnocasa Group Logo

Minden ügynökségnek saját tulajdonosa van és önállóan működik.

árfolyam 29/12/2025
EUR 387.39 HUF

cégünk

Elérhetőségeink

2025 Gruppo T.F.M. Szolgáltató Zrt. - P. IVA 27421275-2-42 - 1068 Budapest, Király utca 102.. Minden ügynökségnek saját tulajdonosa van és önállóan működik.

Adatvédelmi irányelvek | Cookies tájékoztató