Ház eladó

Göd, Alsógöd utca - Alsógöd
129.900.000 Ft
€ 335.320
3 szoba 3 szoba
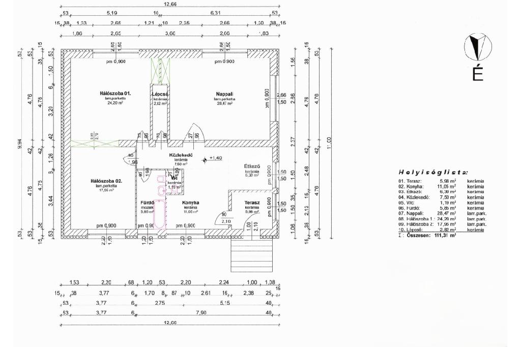
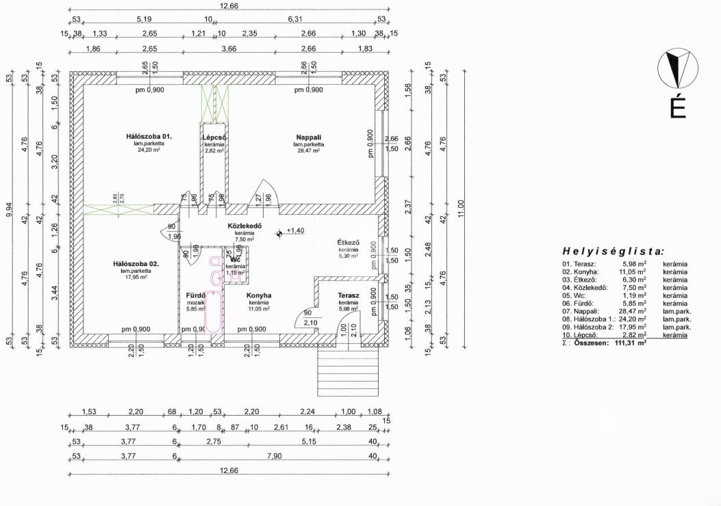
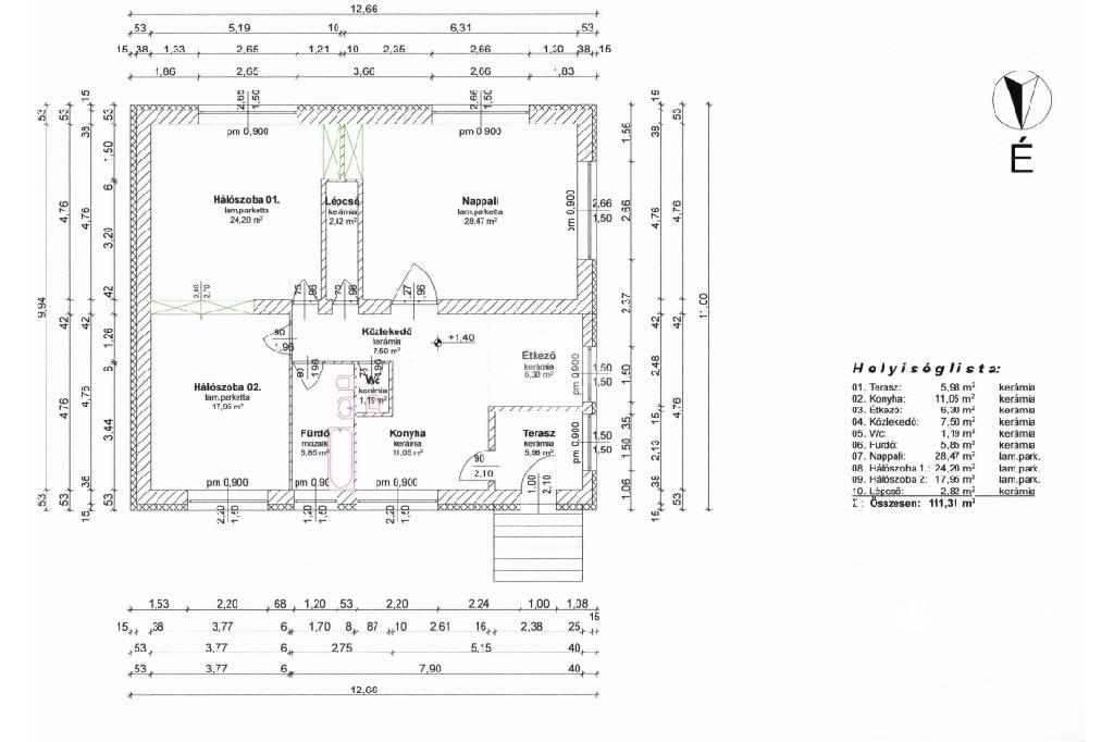
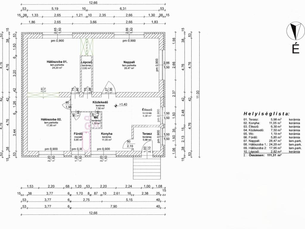
111 nm 111 nm
1 fürdő 1 fürdő

Ház eladó

Göd, Alsógöd utca - Alsógöd

Leírás

Göd kedvelt dunai oldalán eladó egy 111 m²-es, egyszintes családi ház, teljes szuterénnel, 569 m²-es telken.

A ház 1976-ban épült téglából azonban 2018-ban teljeskörű felújításon esett át.

Fűtése kondenzációs gázcirkóval működik, a vízvezetékek és a fűtési rendszer pár éve teljes felújításon estek át, a villanyvezetékek pedig rézből vannak.

Az ingatlanban minden nyílászáró fatipusú, thermo üveges, így a ház jól szigetelt és energiatakarékos.

A szuterénnél 10 cm, a lakószinten 15 cm hőszigetelés gondoskodik a kellemes belső hőmérsékletről. A teljes szuterén rengeteg lehetőséget rejt: tárolásra, műhelynek, hobbitérnek, de akár saját elképzeléseid szerint alakítva további lakótérként is használható.

A kert mérete elegendő a pihenéshez, kertészkedéshez vagy családi programokhoz, miközben könnyen karbantartható. A környék csendes és barátságos, ideális családoknak, és a Duna közelsége remek lehetőséget kínál vízparti sétákra, sportolásra vagy hétvégi kikapcsolódásra. Az ingatlan jó állapotú, azonnal költözhető, így akár már holnap otthon érezheted magad benne.

További kérdéseivel, illetve megtekintési szándékával kérem keresse irodánkat.

A hirdetésben szereplő adatok tájékoztató jellegűek.

Az ingatlan hitelre is megvásárolható. Bankfüggetlen tanácsadóink, az ország összes pénzintézete közül gyorsan és gördülékenyen találja meg az Önnek legmegfelelőbb konstrukciót, egyedi kedvezményekkel. A hitel közvetítés díjmentes

Összes mutatása

Tulajdonságok

Ref.:
59404
Állapot:
Lift:
Nincs
Építőanyag:
Tégla
Építés éve:
1970
Emeletek száma:
1
Összes mutatása

Energetikai tanúsítvány

Ennél az ingatlannál az energetikai tanúsítvány folyamatban van
Építés éve:
1970

Vegye fel velünk a kapcsolatot

* Ez a mező kötelező
Franchisee
Vede Casa Kft.
2131 Dunakeszi Járás, Pesti út, 57.
2131 Dunakeszi Járás, Pesti út, 57. Göd
Hétfő-Péntek: 09:00-19:00,Szombat: 09:00-13:00

Munkatársaink


  • Lidia Oltyán
    Irodavezető

  • Attila Hodola
    Irodatulajdonos

  • Nagy Tifani
    Asszisztens

  • Zsombor Pap
    Képviselő

  • Magyar Péter
    Képviselő
Franchisee
Vede Casa Kft.
2131 Dunakeszi Járás, Pesti út, 57.
Tecnocasa Group Logo

Minden ügynökségnek saját tulajdonosa van és önállóan működik.

árfolyam 29/12/2025
EUR 387.39 HUF

cégünk

Elérhetőségeink

2025 Gruppo T.F.M. Szolgáltató Zrt. - P. IVA 27421275-2-42 - 1068 Budapest, Király utca 102.. Minden ügynökségnek saját tulajdonosa van és önállóan működik.

Adatvédelmi irányelvek | Cookies tájékoztató