Lakás eladó

Göd, Oázis lakópark utca
94.500.000 Ft
€ 243.940
4 szoba 4 szoba
106 nm 106 nm
1 fürdő 1 fürdő

Lakás eladó

Göd, Oázis lakópark utca

Leírás

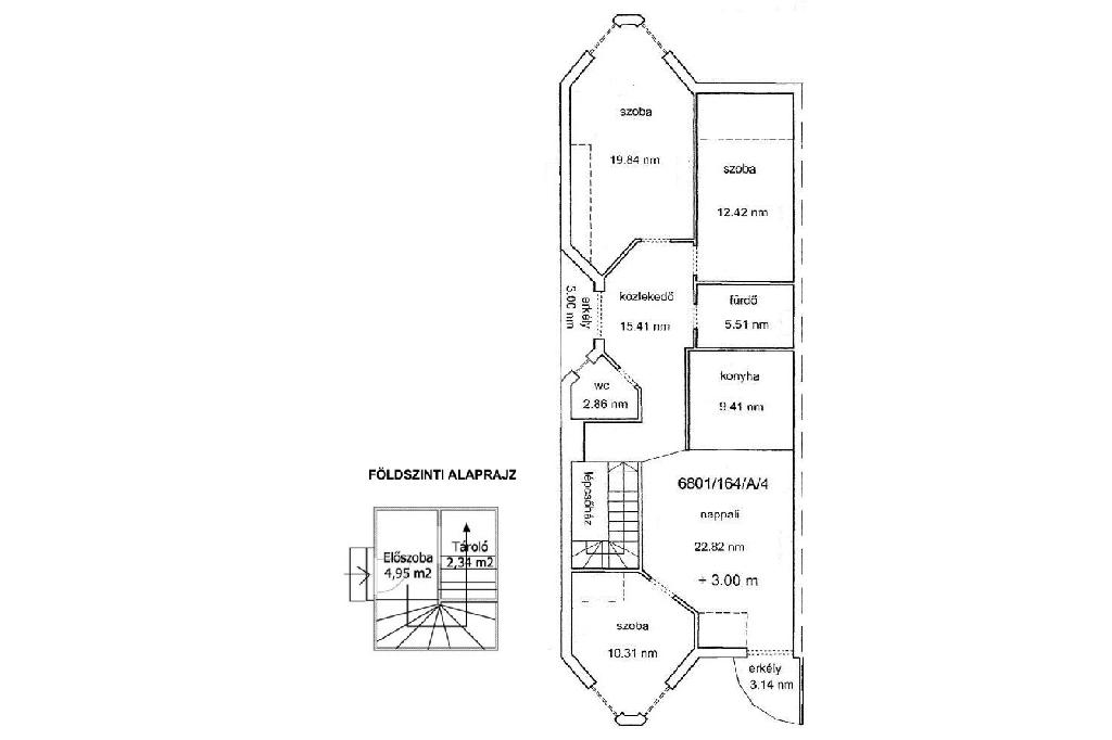
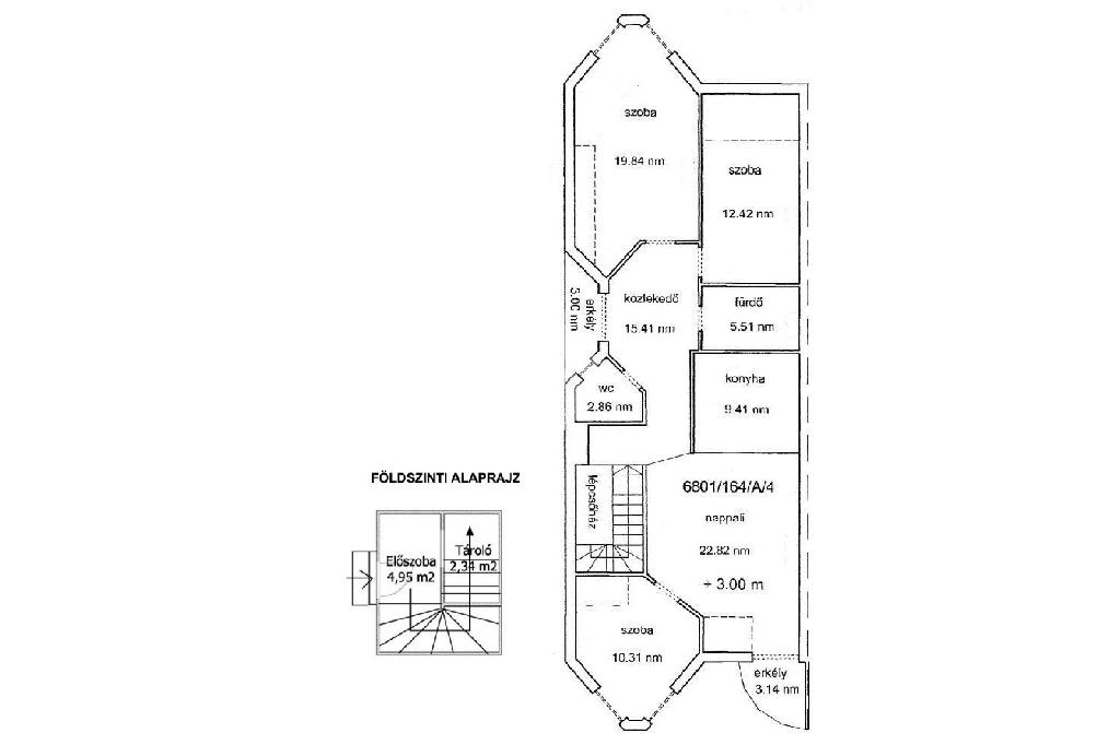
Gödön az Oázis lakóparkban megvételre kínálunk mindössze 4 lakásos társasházban, 106 nm-es alacsony fenttartási költségekkel, jó állapotú emeleti lakást.

Az épület 2016-ban épült, külsőleg szigetelve és cseréptetővel fedve.

Elosztása: Amerikai konyhás nappali ,3 db hálószoba, fürdőszoba, WC.

A szobák laminált parkettásak a többi helység járólapos, nyílászárók műanyag thermo üvegesek, redőnyökkel felszerelve.

A lakás fűtését és a melegvizet gázcirkó biztosítja, a hidegburkolatos részén padlófűtés míg a többi helységben radiátoros hőleadással, továbbá minden helység hűtő-fűtő klímával felszerelt.

Parkolási lehetőség az udvaron illetve az épület elött.

A környék csendes, nyugodt bevásárlási lehetőség illetve kisebb üzletek 15 perc sétával megközelíthetőek.

További kérdéseivel, illetve megtekintési szándékával kérem keresse irodánkat.

A hirdetésben szereplő adatok tájékoztató jellegűek.

Az ingatlan hitelre is megvásárolható. Bankfüggetlen tanácsadóink, az ország összes pénzintézete közül gyorsan és gördülékenyen találja meg az Önnek legmegfelelőbb konstrukciót, egyedi kedvezményekkel. A hitel közvetítés díjmentes

Összes mutatása

Tulajdonságok

Ref.:
58906
Állapot:
Emelet:
2
Lift:
Nincs
Építőanyag:
Tégla
Építés éve:
2016
Összes mutatása

Energetikai tanúsítvány

B
B
B
B
B
B
B
B
B
Építés éve:
2016

Vegye fel velünk a kapcsolatot

* Ez a mező kötelező
Franchisee
Vede Casa Kft.
2131 Dunakeszi Járás, Pesti út, 57.
2131 Dunakeszi Járás, Pesti út, 57. Göd
Hétfő-Péntek: 09:00-19:00,Szombat: 09:00-13:00

Munkatársaink


  • Lidia Oltyán
    Irodavezető

  • Attila Hodola
    Irodatulajdonos

  • Nagy Tifani
    Asszisztens

  • Zsombor Pap
    Képviselő

  • Magyar Péter
    Képviselő
Franchisee
Vede Casa Kft.
2131 Dunakeszi Járás, Pesti út, 57.
Tecnocasa Group Logo

Minden ügynökségnek saját tulajdonosa van és önállóan működik.

árfolyam 29/12/2025
EUR 387.39 HUF

cégünk

Elérhetőségeink

2025 Gruppo T.F.M. Szolgáltató Zrt. - P. IVA 27421275-2-42 - 1068 Budapest, Király utca 102.. Minden ügynökségnek saját tulajdonosa van és önállóan működik.

Adatvédelmi irányelvek | Cookies tájékoztató