Ház eladó

Sződ, Sződ utca
117.600.000 Ft
€ 322.465
4 szoba 4 szoba
105 nm 105 nm
2 fürdő 2 fürdő

Ház eladó

Sződ, Sződ utca

Leírás

Sződ nyugodt, csendes részén épülő új családi házas övezetben modern, 1 szintes, amerikai konyhás, 3 szobás otthonok várják új tulajdonosaikat.

A vásárláshoz CSOK Plusz, Falusi CSOK, otthonfelújítási támogatás, valamint kedvezményes, 3%-os hitel is igényelhető.

Az ingatlan 2025-ben épült vasbeton szerkezettel és betonfödémmel.

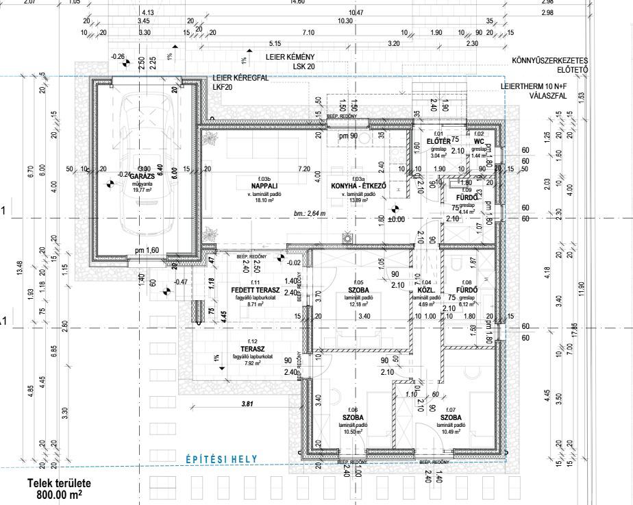
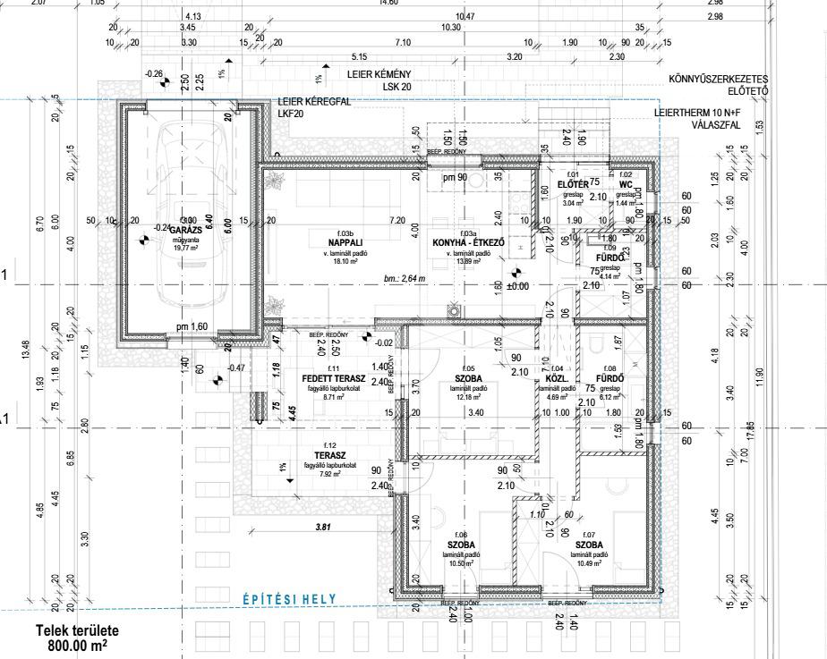
Elosztása: amerikai konyhás nappali, három hálószoba, fürdőszoba, külön WC, tároló és garázs.


Az energiahatékony kialakítást 20 cm-es hőszigetelés, háromrétegű nyílászárók és redőnyök biztosítják.

A fűtésről 6 kW-os hőszivattyús rendszer gondoskodik, padlófűtéssel a ház teljes területén.

A 400 m²-es telek tágas lehetőséget kínál kert kialakítására és kültéri pihenésre, saját zöld oázis kialakítására.

A családi házas övezet fejlesztési terve játszótér kialakítását is tartalmazza, valamint biztosított az ingatlanok aszfaltozott úton történő megközelítése minden tulajdonos számára.

Sződ fejlesztés alatt lévő területén, újonnan kialakított építési telkeken több mérettel és elosztással rendelkező ház épül, minőségi elismert kivitelező álltal. Van lehetőség szinte kész állapotban lévő ház megvásárlására (gyorsabban költözhető), félkész állapotban (szaniterek, fal színek, belső nyílászárók stb. Választására), vagy akár a jövőben épült házak lefoglalásához (a tervezéstől kezdve minden módosítható).

További kérdéseivel, illetve megtekintési szándékával kérem keresse irodánkat.

A hirdetésben szereplő adatok tájékoztató jellegűek.

Az ingatlan hitelre is megvásárolható. Bankfüggetlen tanácsadóink, az ország összes pénzintézete közül gyorsan és gördülékenyen találja meg az Önnek legmegfelelőbb konstrukciót, egyedi kedvezményekkel. A hitel közvetítés díjmentes

Összes mutatása

Tulajdonságok

Ref.:
59834
Állapot:
Új
Lift:
Nincs
Építés éve:
2025
Emeletek száma:
1
Tájolás:
Déli Nyugati
Összes mutatása

Energetikai tanúsítvány

A+
A+
A+
A+
A+
A+
A+
A+
A+
Építés éve:
2025

Vegye fel velünk a kapcsolatot

* Ez a mező kötelező
Franchisee
Vede Casa Kft.
2131 Dunakeszi Járás, Pesti út, 57.
2131 Dunakeszi Járás, Pesti út, 57. Göd
Hétfő-Péntek: 09:00-19:00,Szombat: 09:00-13:00

Munkatársaink


  • Lidia Oltyán
    Irodavezető

  • Attila Hodola
    Irodatulajdonos

  • Nagy Tifani
    Asszisztens

  • Zsombor Pap
    Képviselő
Franchisee
Vede Casa Kft.
2131 Dunakeszi Járás, Pesti út, 57.
Tecnocasa Group Logo

Minden ügynökségnek saját tulajdonosa van és önállóan működik.

árfolyam 16/04/2026
EUR 364.69 HUF

cégünk

Elérhetőségeink

2026 Gruppo T.F.M. Szolgáltató Zrt. - P. IVA 27421275-2-42 - 1068 Budapest, Király utca 102.. Minden ügynökségnek saját tulajdonosa van és önállóan működik.

Adatvédelmi irányelvek | Cookies tájékoztató