Lakóövezeti telek eladó

Sződ, Sződ utca
26.500.000 Ft
€ 68.406
978 nm 978 nm

Lakóövezeti telek eladó

Sződ, Sződ utca

Leírás

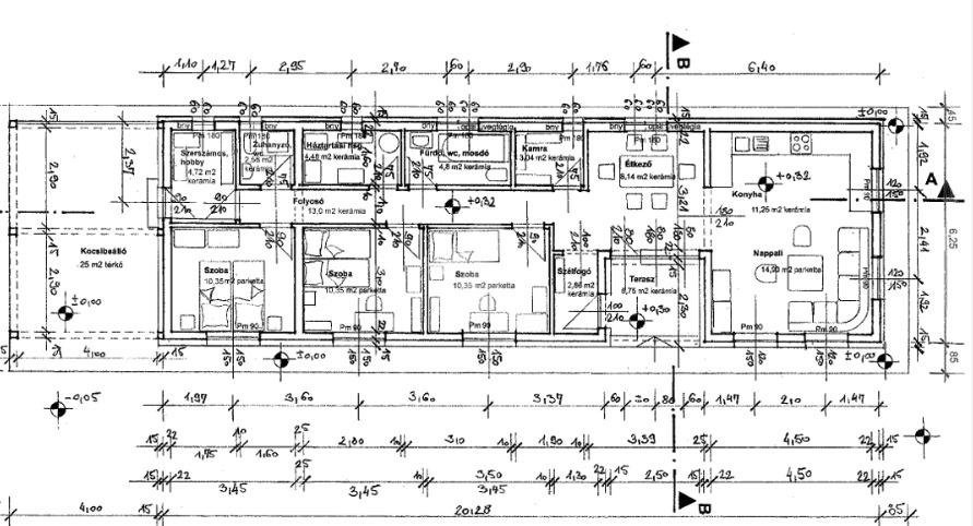
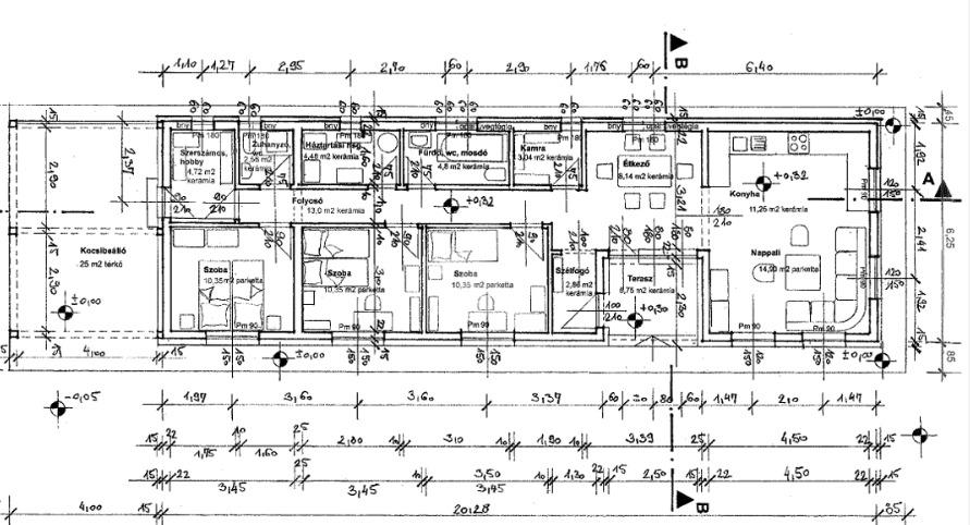
Sződön eladó egy 973 m²-es, aszfaltozott, csendes mellékutcában található építési telek!

A telek 10,5 méteres utcafronttal és 25%-os beépíthetőséggel rendelkezik, így akár egy tágas, modern családi otthon is megvalósítható rajta.

A legnagyobb előnye, hogy már rendelkezik érvényes építési engedéllyel egy bruttó 153 m²-es, egyszintes, könnyűszerkezetes családi ház felépítésére, és a sávalap már elkészült, így az építkezés akár azonnal folytatható.

A telekre víz és villany be van vezetve, a környezet rendezett, családi házas övezet.
Ideális választás mindazoknak, akik gyorsan, meglévő engedélyekkel és előkészített alapokkal szeretnének építkezni rendezett, nyugodt környezetben!

További kérdéseivel, illetve megtekintési szándékával kérem keresse irodánkat.

A hirdetésben szereplő adatok tájékoztató jellegűek.

Az ingatlan hitelre is megvásárolható.

Bankfüggetlen tanácsadóink, az ország összes pénzintézete közül gyorsan és gördülékenyen találja meg az Önnek legmegfelelőbb konstrukciót, egyedi kedvezményekkel. A hitel közvetítés díjmentes.

Összes mutatása

Tulajdonságok

Ref.:
59202
Állapot:
Befejezetlen
Lift:
Nincs
Építés éve:
2025
Telek:
978 nm
Összes mutatása

Energetikai tanúsítvány

Ennél az ingatlannál az energetikai tanúsítvány folyamatban van
Építés éve:
2025

Vegye fel velünk a kapcsolatot

* Ez a mező kötelező
Franchisee
Vede Casa Kft.
2131 Dunakeszi Járás, Pesti út, 57.
2131 Dunakeszi Járás, Pesti út, 57. Göd
Hétfő-Péntek: 09:00-19:00,Szombat: 09:00-13:00

Munkatársaink


  • Lidia Oltyán
    Irodavezető

  • Attila Hodola
    Irodatulajdonos

  • Nagy Tifani
    Asszisztens

  • Zsombor Pap
    Képviselő

  • Magyar Péter
    Képviselő
Franchisee
Vede Casa Kft.
2131 Dunakeszi Járás, Pesti út, 57.
Tecnocasa Group Logo

Minden ügynökségnek saját tulajdonosa van és önállóan működik.

árfolyam 29/12/2025
EUR 387.39 HUF

cégünk

Elérhetőségeink

2025 Gruppo T.F.M. Szolgáltató Zrt. - P. IVA 27421275-2-42 - 1068 Budapest, Király utca 102.. Minden ügynökségnek saját tulajdonosa van és önállóan működik.

Adatvédelmi irányelvek | Cookies tájékoztató